Telescoping Crane Jib

Telescoping Crane Jib
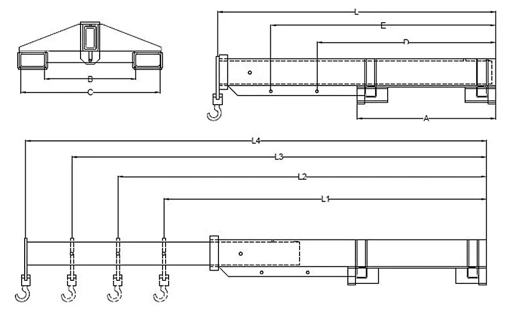
| Model | Cap @ 72"/112" LC | Pocket ID |
Pocket Spread (C/B) |
Hook Points
L, E, D
L1, L2, L3, L4 |
Weight LB | Lost Load In. (LLC) | HCG Ret./Ext | VCG In. |
Pocket Length
In. (A)
|
| FCJL-50-72-112 | 5,000@72 2,000@112 |
3.25" x 7.25" | 21.75/36.63 | 48/60/72 84/96/108/112 |
433 | 0 | 29/49 | 8.5 | 37 |
| FCJL-75-72-112 |
7,500@72 3,000@112 |
3.25" x 7.25" |
21.75/36.63 |
48/60/72 84/96/108/112 |
475 | 0 | 31/51 | 8.5 | 37 |
Request a Quote
Fork-Co Leads the Pack
With our industry-best lead times (4-5 weeks on complex builds), full in-house engineering and design team, on-site manufacturing and fabrication facility just south of Houston, TX, and vast standard product inventory, Fork-Co is the right choice for your project. We stand behind our products 100%, either it accomplishes your goals, or we aren't done.
To install this Web App in your iPhone/iPad press
and then Add to Home Screen.

